This project spotlight shares a Design Review for a new single-family residence in Arkansas.
Project Specifics
The focus of our design review for Waterview Garden was predominantly space planning. Our task was to consolidate the private bedroom spaces, ensure space efficiency of the public spaces, and as a sidebar, look at the sun path across the pool.
Our clients came to us wanting to gain confidence in their home design. They previously had a home design created by another designer who already created construction drawings. But they weren’t 100% confident in the design. They wanted to make sure they got it right before starting construction, since they knew that making changes later is more costly.
They came to us with their plans, a site photo, and a 3D view of the courtyard which included the pool.
Site Photo provided by the Client

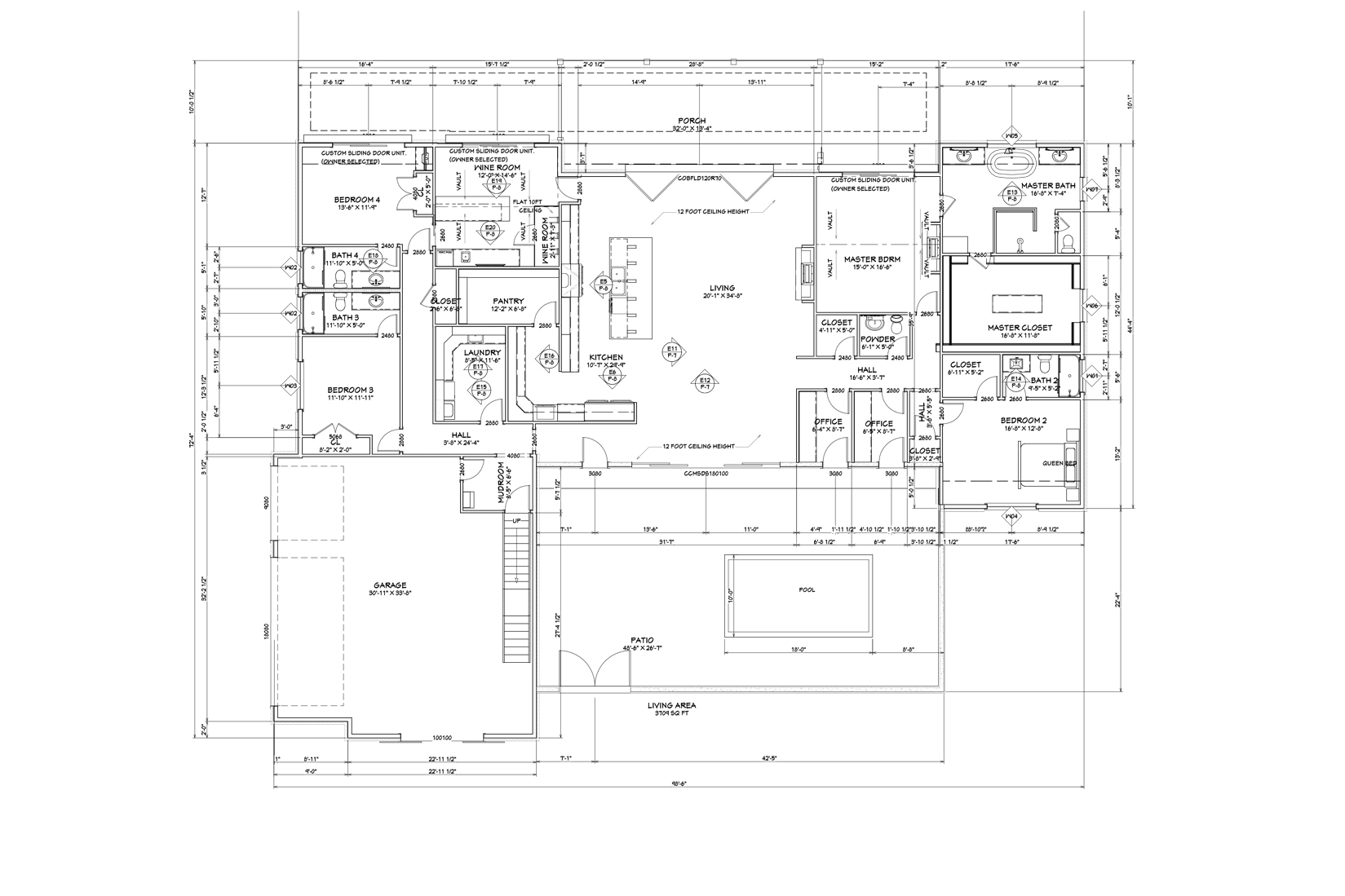
Original floor plan provided by the Client
Project constraints that would affect our design review:
The main project constraint was that the house was already designed, and the clients had working construction drawings in hand. Any changes would most likely result in rework to update the current drawings.
Because the design was already developed, the big overarching decisions (both good and not so good) were already made so we wouldn’t be able to suggest any sweeping changes to the design. The massing was set for the most part, as was the general layout of spaces.
Our Design Review
Our design review consisted of three prompts: consolidate the bedrooms, look at space efficiency in the open floor plan, and determine if the pool had enough sunlight on the north side of the house.
Consolidate the Bedrooms – Group Like With Like
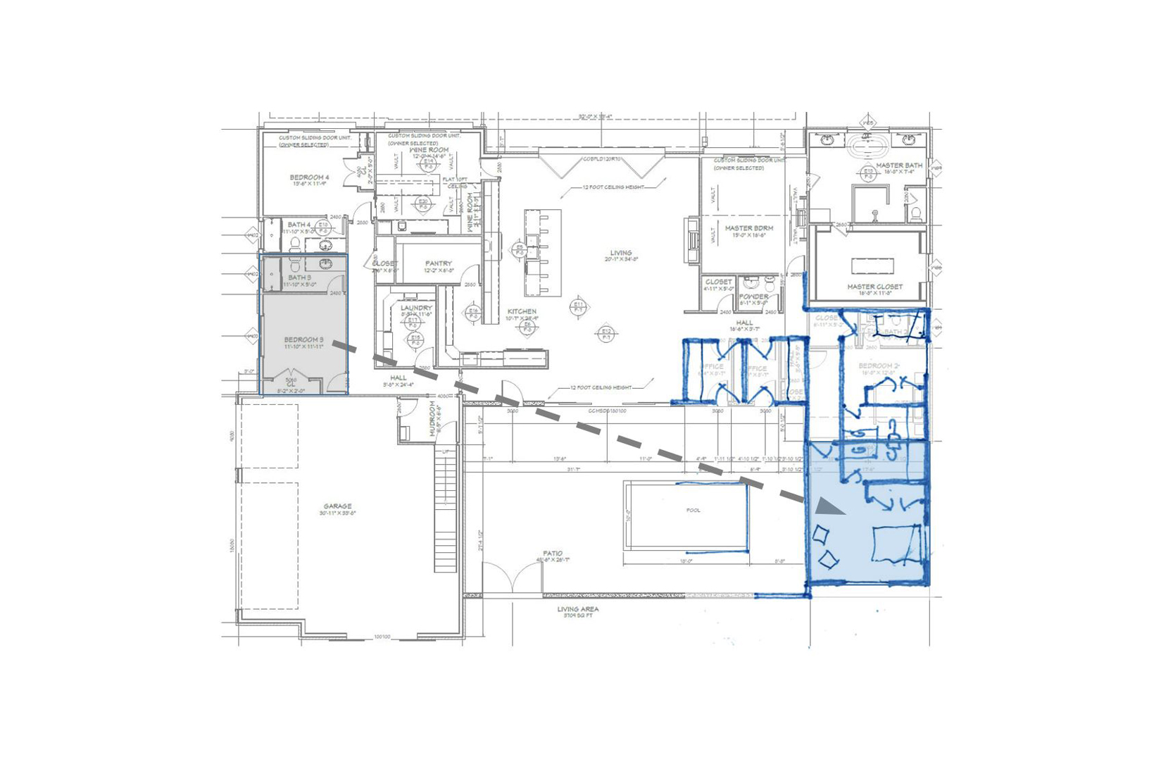
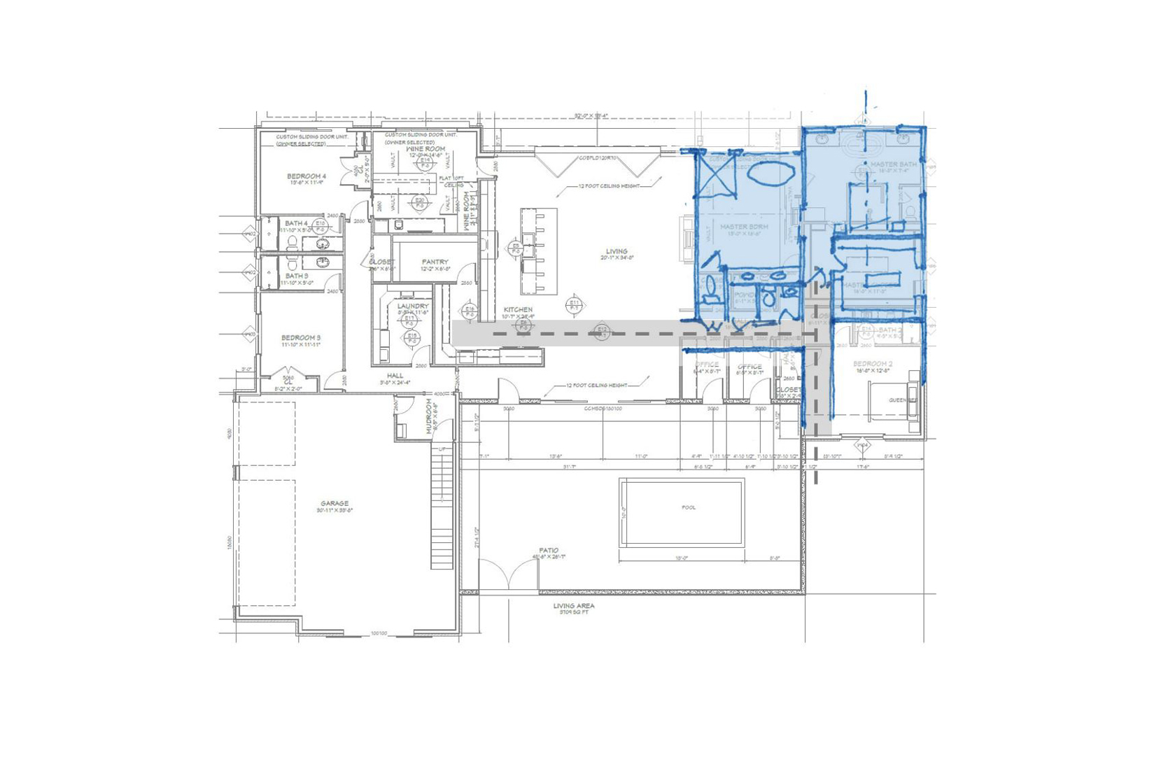
Our design review started with their biggest ask: to move Bedroom #3 closer to the Master Suite and Bedroom #2. Previously it was located near the garage. In the short term, Bedroom #3 would be a guest bedroom, but should they decide to have another child, our clients felt this bedroom would be too far away.
Makes sense.
Bedroom #4 in the upper left corner was intended to be a mother-in-law suite so keeping that one separate and private was a good move. But based on their intended goals, Bedroom #3 was definitely not in the right place.
Our clients were open to SOME adjustments to the exterior walls so we proposed moving Bedroom #3 to below Bedroom #2 and enclosing the courtyard on the 3rd side. We felt this would provide the easiest solution with the least amount of rework to the other spaces. And as we demonstrate later, this move won’t negatively affect direct sunlight on the pool.

The resultant open space where Bedroom #3 existed could be used as a storage space, shop, or enlarged mudroom, especially since they may decide to reduce the size of the garage to a 2-car garage.
Space Efficiency – Appropriately Sized Public Spaces
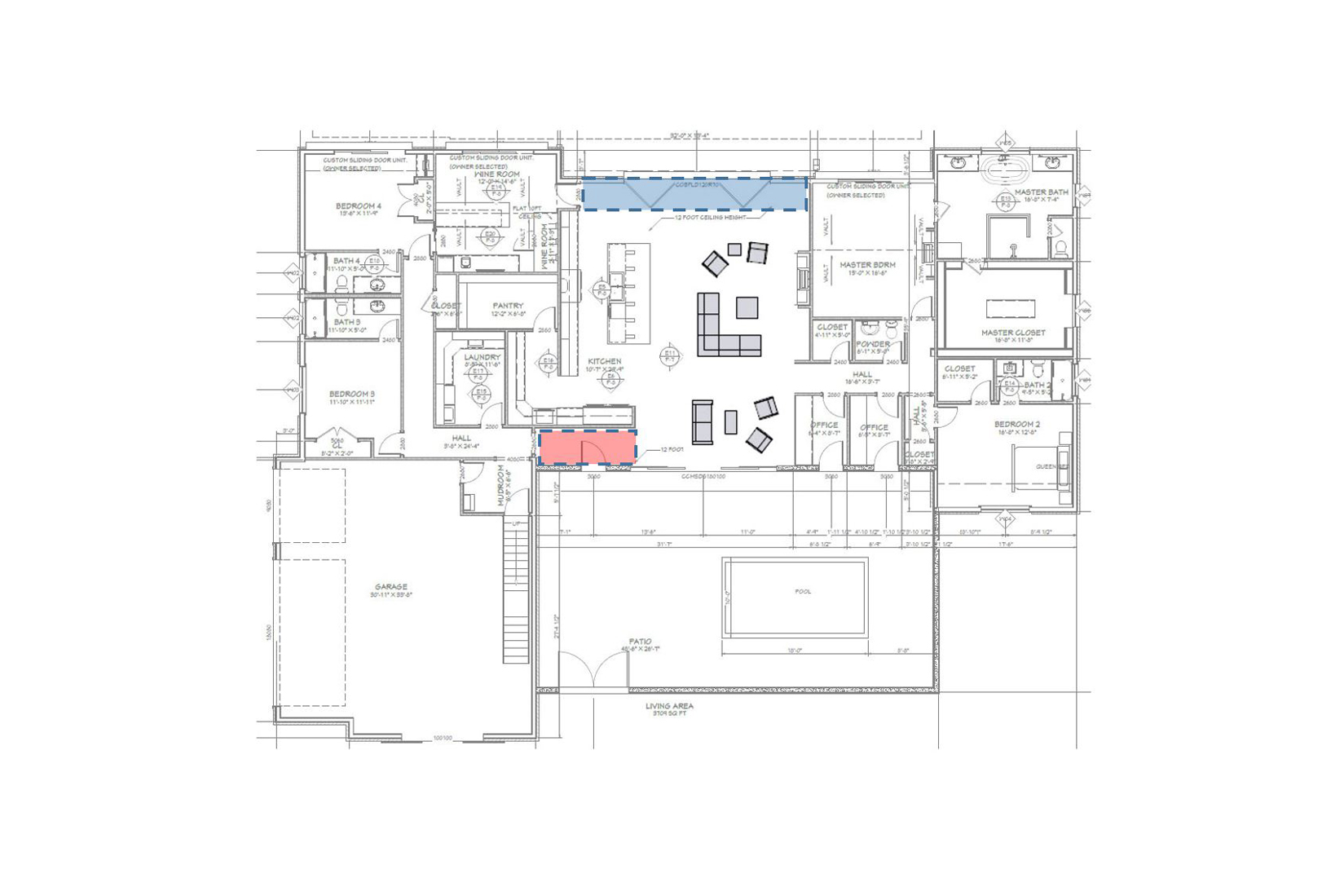
Their other main concern was the utilization of space in the main open area. With floor plans that combine kitchen, dining, and living spaces, the actual size of the open area can be smaller than if there were three separate rooms. You can eliminate redundant circulation space when you remove walls because spaces can share circulation aisles.
In looking at the existing floor plan, our clients wondered if the open space was sized appropriately for their needs. This is a valid concern, especially without seeing a furniture layout on the drawings. One of the biggest oversights we see in reviewing floor plans is that people forget to include furniture. Without a realistic furniture layout, it’s too hard to tell if your space is sized appropriately.
As we tackled this prompt, we first had to learn about their furniture requirements, as well as how they planned to use the space. For example, they preferred to eat their meals at the island, so less emphasis could be placed on a formal dining area. They did, however, enjoy different zones of sitting spaces.
Based on their input, we created a furniture layout for the living area. We created a zone for lounging in front of the fireplace/tv and then we created a sitting area for conversing.
The layout and size of the space wasn’t bad, but we felt improvements were possible. Since they were interested in potentially reducing square footage or improving the usage, we looked for ways to use the space more efficiently.
First, we noticed that the living area was actually a little larger than it needed to be near the bifold glass doors that faced the lake.
Then, we noticed that the entry was very tight. The front door opens to a wall immediately four feet away. They intended to put artwork on that wall, but artwork needs space to view it, which they didn’t have.


-
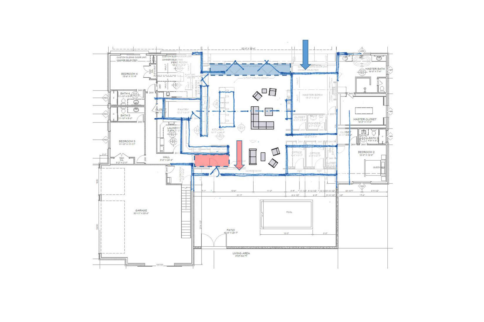
better alignment between the center of the kitchen and the center of the living area and fireplace.
-
better circulation path to the bedroom wing. It’s now aligned with the kitchen aisle leading from the pantry instead of a weird jog that was there before.
Bonus Observation – Space Privacy, Separation, and Priority
After addressing the floor plan concerns our clients had, we made one final suggestion to improve the design. While it’s important to group similar types of spaces together and to look at the actual sizes of spaces, it’s just as important to provide separation and a sense of priority to important spaces.
For example, we felt that the master bedroom should hold a more prominent location, the “corner office”, instead of the master bathroom. If we switched them, the master bedroom could have windows/doors on two sides and could have a vaulted ceiling centered on the bed. It would also provide more separation from the main living area. While sharing a wall with the living room is not terrible, it’s also not ideal. Whether it’s hearing voices in the next room, the show playing on TV, or even the toilet flushing, sound travels. And unfortunately, most residential builders don’t do a great job at preventing sound transfer between spaces and walls. Acoustical batt insulation helps, but it’s not a surefire solution.
Our suggestion was to rework the master suite to provide better privacy, proximity, and priority. It also had the added benefit of straightening out the hallway which previously jogged.

Sun Path Study
Lastly, our clients asked us to review their pool location in relation to the house. They were concerned that the house would cast too much shadow over the pool. They initially chose this pool location because they wanted to keep the other side of the house facing the lake free of visual distraction. It also has a significant slope so they didn’t want to deal with regrading and a lot of site work to level out an area for a pool.
Original 3D View provided by the Client

Site Photo provided by the Client












I had imagined the pool to be in the house! (With large skylights) Silly me. Nothing about the cost? What is over the garage? I favor wall hung toilets for looks and ease of cleaning. I like the idea of light from two sides (#159 of A Pattern Language). I am learning about “flat” roofs. I just looked at one in Columbus last Tuesday. Work is scheduled to start today. About 2800 sf of EDPM fully adhered.
What a wasted view. With the pool on the front of the house it could be in any vinyl village neighborhood in suburbia. I would far rather be in the pool over looking the lake. I have designed pools and while the grade might be more of an issue in the back you could step down to the pool that way when you’re looking at the lake the pool is at a lower grade not hogging the view. That way you enjoy the lake from the pool. I also find the connection between the garage roof and the roof of the house could use a bit more consideration. It appears a bit awkward. Like a reno rather then a new build. I know they didn’t ask you to review this but it is worth mention. Just my opinion. Been wrong before, could be here too. Hard to tell without site pictures and elevation to work off of.